551 - 553 W Cuba Rd.

Barrington Hills, IL 60010

Welcome to the Cuba Estate

Located in Northfield just off Sunset Ridge, this lot feels like a retreat nestled in a beautifully serene neighborhood. Ideal for those leisurely strolls, the area boasts scenic streams and tree-lined streets.

Embrace the opportunity to construct your dream home in a neighborhood where new multi-million dollar homes are on the rise. This property allows you to build a modern residence meeting today's standards and certifications without a basement, offering the exclusive International Well Building Institute residential package for those interested - see the WELL certification flyer below.

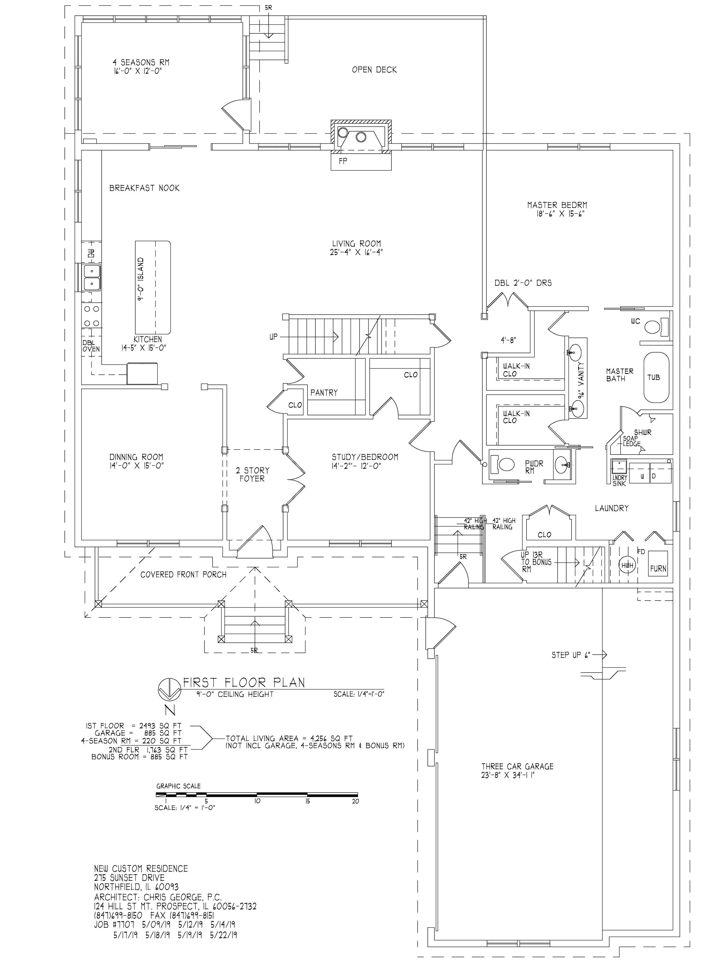
Bring your own builder or check out the proposed plans which outline a spacious two-story, 4,700 square foot home. The design features a stunning first-floor master suite and an expansive open-concept layout for the family room, kitchen, and 4 seasons room leading out to a deck - perfect for both entertaining and everyday living.

Upstairs, discover three bedrooms, two additional baths, a family room with a fireplace, a convenient laundry room, and ample storage space. The second-floor family room provides versatility, suitable for a children's play area, extra storage, or the option to convert into a home office, in-law suite, or live-in au-pair space with a separate entrance.

Upon completion, this property is projected to have an estimated value exceeding $2.5 million based on current comparables, offering a unique opportunity to build instant equity while ensuring a "WELL certified" healthy home environment.

Access a comprehensive set of detailed blueprints below. Don't miss the chance to create a luxurious and healthy living space in this highly sought-after location.

  • Very short distance to Sunset Ridge and other highly rated schools. Shopping, restaurants, and access to I-94 are all just minutes away. Vast amount of local amenities including restaurants, entertainment, shopping, parks, trails and more.

 

Coming Soon

List Price:

Info below based on plans, see attachment below

551 W Cuba

5 Acre Lot

3 Bedrooms

4,700 SqFt.

2 Bathrooms

24,332 SqFt.

Building Plans
WELL Certification

Want to know more or schedule a tour?